HomeExtensionsRUs

Single storey extension in St Albans showing garden-facing doors, window, and brickwork designed to blend with the existing home.

Single Storey Extension Creating an Open-Plan Family Living Space in St Albans

This single storey extension transformed an unused patio area into a bright, open-plan kitchen, dining, and family living space. Designed for modern family life, the extension creates a versatile environment that works equally well for everyday living, entertaining, and play, while seamlessly integrating with the existing home.

Before photo of rear exterior of semi-detached house in St Albans showing unused patio area prior to single storey extension

The Challenge

For this single storey home extension project in St Albans, the homeowners wanted to create additional space that would better support family life. An unused patio area presented the ideal opportunity to form a generous open-plan kitchen, dining, and sitting room that could also function as a play space for their two young children. The challenge was to design a single integrated room that felt spacious, light-filled, and practical for everyday use.

Our Solution & Design Approach

Our design approach focused on creating a simple yet highly effective single storey extension that maximised light and volume. By building out into the unused patio space and forming a single structural opening into the existing home, we created a generous open-plan kitchen, dining, and living area.

A key design feature was the vaulted ceiling, which gives the new space a strong sense of height and openness, enhanced further by strategically positioned rooflights. A key part of our end-to-end home extensions approach we used smart engineering solutions allowed the ceiling to slope elegantly upwards, creating a striking visual impact while maintaining structural efficiency throughout the design and build process.

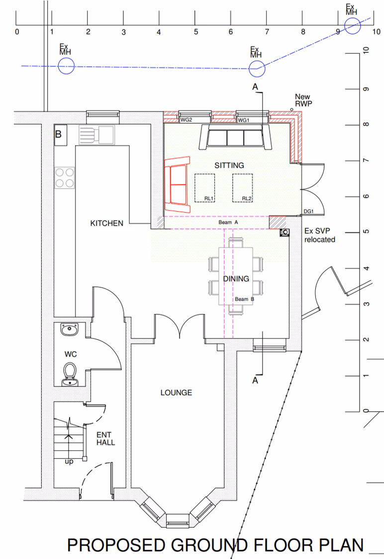
Proposed top-down floorplan illustration for single storey open-plan kitchen dining and living extension in St Albans

The Build Process

During the early stages of the single storey extension build, excavation revealed unusually deep existing foundations and unexpected ground conditions. Further investigation uncovered remnants of asbestos and mesh-filled ground, linked to historical use of the land prior to residential development. Once these groundworks challenges were carefully resolved and the foundations completed, the remainder of the build progressed smoothly, allowing the structure and roof to be completed efficiently.

The Result

The completed single storey extension has transformed the home, providing a comfortable and welcoming family space that can be enjoyed throughout the day and across all seasons.

Light-filled, spacious, and adaptable, the new room enhances daily life now and offers long-term flexibility as the family grows and their needs evolve.

Book Your Free Consultation & Feasibility Check

We’ll review your property and provide a clear feasibility overview with initial design ideas – completely free and tailored to your home.

WE WILL CALL WITHIN A BUSINESS DAY

This site is protected by reCAPTCHA and the Google Privacy Policy and Terms of Service apply

See more of Our Work

See more of our work

Home Extension Design

See how your ideas become a practical and beautiful design.

Council Planning Approval

See how we secure Council Planning Approval.

Build Project Management

Discover how we manage every step from approval to completion.

Scroll to Top